O sucesso de um posto de combustível começa muito antes da construção. Antes de definir o layout ou escolher os materiais, o empreendedor precisa realizar o estudo preliminar do posto de gasolina — uma etapa fundamental que direciona todas as decisões seguintes. É nesse momento que o projeto ganha forma técnica, estratégica e financeira, transformando a ideia inicial em um empreendimento sólido, seguro e lucrativo.
O que é o estudo preliminar e por que ele é essencial
O estudo preliminar de posto de combustível é a base de todo o desenvolvimento arquitetônico. Nessa etapa, os profissionais avaliam o terreno, verificam as exigências legais, analisam o fluxo de veículos e identificam o potencial comercial da área. Dessa forma, com esses dados, definem soluções que garantem funcionalidade, segurança e eficiência operacional.
Ignorar essa fase pode gerar retrabalho, custos extras e até inviabilizar o projeto. Em contrapartida, um estudo bem conduzido antecipa desafios, orienta decisões estratégicas e fornece um plano claro para cada etapa da obra, assegurando previsibilidade e sucesso na execução do empreendimento.
Principais elementos do estudo arquitetônico posto de combustível
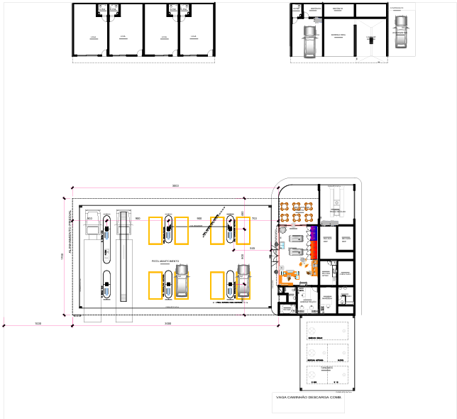
O estudo arquitetônico de posto de gasolina é o ponto de partida para todas as decisões de projeto. Nesse sentido, ele abrange análises técnicas, conceituais e legais que asseguram a viabilidade do empreendimento. Entre os principais aspectos avaliados, estão o levantamento do terreno, as condições de acesso, o fluxo de veículos e o atendimento às normas ambientais e urbanísticas. Assim, essa etapa garante que cada decisão seja fundamentada em dados concretos e alinhada aos objetivos do investidor.
1. Análise do terreno e entorno
A escolha do terreno influencia diretamente no sucesso do posto. Por isso, o estudo preliminar analisa cuidadosamente aspectos como topografia, tipo de solo, drenagem, acessos e fluxo viário. Além disso, são verificados o zoneamento urbano e as restrições legais, a fim de garantir que o local possa abrigar uma atividade de revenda de combustíveis com total segurança e conformidade.
2. Estudo de fluxo de veículos
Um posto funcional depende de uma circulação fluida. Por isso, o estudo avalia detalhadamente as entradas, saídas, raios de manobra, posicionamento das bombas e áreas de estacionamento. Dessa forma, evita-se o congestionamento e garante-se uma melhor experiência ao motorista, que deve encontrar um ambiente prático, seguro e bem organizado.
3. Aspectos normativos e de segurança
Durante o estudo arquitetônico do posto de combustível, levam-se em conta normas ambientais, de segurança e acessibilidade. Além disso, questões como distâncias mínimas entre tanques e edificações, ventilação, drenagem e prevenção de incêndios são definidas ainda nessa etapa, o que contribui para evitar riscos futuros e garantir a conformidade técnica do projeto desde o início.
4. Proposta de layout e volumetria
A partir das informações coletadas, o arquiteto elabora o layout conceitual do posto. Nessa etapa, a proposta define com precisão o posicionamento das bombas, da loja de conveniência, da área administrativa, do estacionamento e dos serviços adicionais. Além disso, o estudo considera a identidade visual, a iluminação e busca garantir a integração estética com o entorno, criando um conjunto harmônico e funcional.
5. Orçamento e viabilidade financeira
O estudo preliminar abrange também estimativas de custos, cronograma de execução e projeção de retorno do investimento. Com base nessas informações, é possível orientar com precisão o planejamento financeiro e assegurar que o empreendimento seja viável e rentável a médio e longo prazo. Assim, o investidor toma decisões mais seguras e estratégicas, reduzindo riscos e otimizando recursos.
Descubra: Projetos arquitetônicos para postos de gasolina: ideias modernas e funcionais
Estudos preliminares em concessões e parcerias
Em casos de concessão posto de combustível estudos preliminares, como parcerias com órgãos públicos ou terrenos sob cessão, esse levantamento é obrigatório. Ele comprova a viabilidade técnica e econômica do projeto e serve como base para autorizações e contratos.
Entre os documentos exigidos estão:
- – Relatórios de viabilidade técnica e financeira;
- – Análise de impacto ambiental e urbano;
- – Projeções de demanda e retorno sobre o investimento;
- – Cronograma de implantação e operação;
- – Plantas e esquemas conceituais.
Um estudo bem estruturado demonstra seriedade e aumenta as chances de aprovação junto às autoridades e investidores.
Benefícios de um estudo preliminar bem executado
Um estudo preliminar posto de gasolina bem desenvolvido traz benefícios diretos para o investidor:
- – Previsibilidade financeira: permite planejar o investimento com base em dados reais.
- – Redução de riscos: antecipa problemas legais, técnicos e ambientais.
- – Eficiência operacional: garante um layout otimizado e funcional.
- – Agilidade nas aprovações: facilita a liberação de licenças e autorizações.
- – Maior valorização do projeto: um posto bem planejado se destaca no mercado e oferece retorno mais rápido.
Como garantir um estudo de qualidade
Para que o estudo tenha precisão e credibilidade, é importante contar com profissionais especializados no setor de combustíveis. Eles conhecem as normas específicas, os fluxos de operação e as exigências técnicas que fazem diferença no resultado final.
Além disso, o investidor deve:
- – Escolher terrenos estrategicamente localizados, com bom acesso e visibilidade;
- – Verificar a legislação municipal e ambiental antes da compra;
- – Solicitar análises de tráfego e de impacto de vizinhança;
- – Considerar o design arquitetônico como parte da estratégia de marketing;
- – Avaliar custos e prazos de cada etapa antes de iniciar as obras.
Tenha um posto de combustível de sucesso!
O estudo preliminar de posto de gasolina vai muito além de um documento técnico — ele funciona como um mapa estratégico, guiando todas as decisões do projeto. Nessa fase, os profissionais definem soluções funcionais e seguras, garantindo que o empreendimento esteja em conformidade com as normas e gere resultados concretos.
Ao investir no estudo arquitetônico de posto de gasolina, o empreendedor fortalece a base do negócio, já que cada decisão é tomada com embasamento técnico e visão estratégica. Além disso, em casos de concessão, essa etapa é ainda mais importante, pois viabiliza o projeto e reforça sua credibilidade perante órgãos públicos e parceiros.
Assim, planejar com antecedência e visão técnica é o primeiro passo para transformar um terreno em um posto moderno, eficiente e pronto para se destacar nas estradas.
Quer fazer a diferença e garantir o sucesso do seu posto de combustível? Conte com o suporte do único grupo empresarial dedicado exclusivamente ao setor de postos de combustíveis no Brasil, com mais de 25 anos de expertise e que oferece consultoria personalizada. Entre em contato conosco para obter mais informações!
Com a Petrol Group, você tem tudo para seu posto de combustível em um só lugar!
Continue lendo sobre: Guia completo para montar seu posto de combustível em 2025


