GAS STATION ARCHITECTURE
HAPPY
OVERVIEW
Discover the architecture of the Happy gas station! We created an immediate and deep connection with the region, evoking the vibrant essence of the coastline. From the very beginning, our focus was to develop a visual identity that speaks directly to the local audience, reflecting its culture and environment. To achieve this, we carefully selected a color palette combining white, green, and yellow—each chosen to convey specific sensations. White was used to enhance space and maximize natural light, creating a sense of openness and lightness. Meanwhile, green and yellow were incorporated to reference natural landscapes and the sunny, energetic coastal climate. As a result, this color combination not only enhances the station’s design but also creates a welcoming, fresh, and inviting atmosphere, making customers feel part of the environment from the very first interaction.
SERVICES
| ARCHITECTURAL DESIGN | VISUAL IDENTITY |
| DESIGN | FLOOR PLAN |
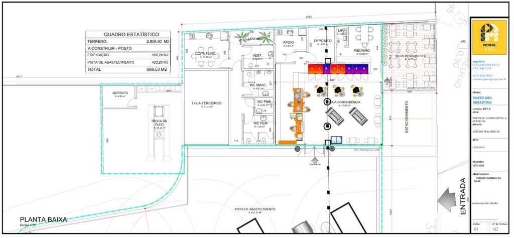
ARCHITECTURAL DESIGN PROJECT

In the architectural design of the Happy Gas Station, we prioritized natural lighting as a key element of the environment. To achieve this, we incorporated large windows and strategically positioned openings, allowing daylight to flow throughout the entire space. As a result, we created a pleasant, stimulating, and welcoming atmosphere. This strategy not only reduces reliance on artificial lighting but also promotes the well-being of both visitors and staff, making the space more inviting and comfortable.
Additionally, we planned to highlight the name “Happy Gas Station” on the canopy fascia, with the option to abbreviate it for greater visibility and visual impact. To reinforce this identity, we selected a vibrant color palette, with yellow as the dominant tone, complemented by shades of green and blue. These colors reflect the station’s liveliness and evoke the coastal atmosphere, strengthening the connection with the region’s culture and spirit. In this way, the design aligns perfectly with the aesthetic and functional proposal of the Happy Gas Station.

GAS STATION ARCHITECTURE: HAPPY GAS STATION
To optimize circulation within the station, we developed a layout that ensures efficient and organized flow. This allows customers to move easily, avoiding congestion and improving the overall experience. Furthermore, the floor plan was carefully designed to define specific areas, such as waiting and service zones. This clear division ensures fast, efficient service that fully meets users’ needs.
Regarding operations, the station will offer fuels such as gasoline, ethanol, and diesel, with prices displayed on signs separate from the main totem. This approach provides greater clarity and easier readability for customers, making communication more direct and transparent.
Moreover, the station was positioned to integrate harmoniously with its surroundings, standing out without losing its local essence. We remain open to suggestions regarding the creative style; however, we prefer the use of emblems and non-abstract icons to strengthen brand identity and recognition. Finally, we plan to acquire neighboring plots in the future to expand the station if necessary, and we have already considered the installation of a covered parking area. This will facilitate customer access to the convenience store and other services offered on-site.
Related Works

Vila Rica gas station design
